Донстрой. Москва

Символ

 
площадь

от 28 м²

 
завершение

IV кв 2028

 
стоимость

от 18.3 млн

Это целый «город в городе», где шесть кварталов с поэтичными именами — «Свобода», «Достоинство», «Смелость», «Искренность», «Независимость» и «Вдохновение» — складываются в единую симфонию жизни, где каждый найдёт свою ноту.

Здесь вы становитесь не просто жителем, а частью живого, дышащего организма, где природа, архитектура и человек существуют в абсолютной гармонии.

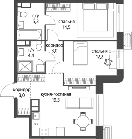
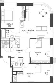
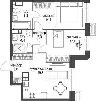
ТИПОВЫЕ ПЛАНИРОВКИ ОБЪЕКТОВ

Студии

Площадь от 28 м2

от 18.282.240 руб

2Е-комнатные

Площадь от 35.9 м2

от 20.059.312 руб

3Е-комнатные

Площадь от 55.2 м2

от 28.799.496 руб

4Е-комнатные

Площадь от 87.1 м2

от 39.104.416 руб

ипотечный калькулятор

укажите параметры и рассчитайте ежемесячный платеж

18 300 000 54 900 000
20% 100%
1
1 30
* Расчёты не являются публичной офертой. Конечные условия кредитования определяются банком после рассмотрения заявки
Пожалуйста, укажите телефон
Согласен с политикой обработки персональных данных
Необходимо согласие

Символ ЭТО

Рядом — Лефортовский парк с его вековыми аллеями, набережная Яузы, а также вся история старой Москвы: Немецкая слобода, Екатерининский дворец, старинные усадьбы.

Фасады — это симфония плавных бионических линий и строгой геометрии. Это коллекция архитектурных раритетов, где каждый квартал имеет своё лицо.

Озеленение занимает около 40% всей территории застройки. Это ваш личный кислородный цех в центре мегаполиса.

Ваши дети могут ходить в престижную школу, не пересекая ни одной автомобильной дороги — путь лежит через парк. Это безопасность и качественное образование в двух шагах от дома.

Всё, что нужно для полноценной жизни, работы и отдыха, — внутри или у порога вашего дома. Вы больше не тратите часы на дорогу.

Двусветные парадные лобби с высотой потолков до 9 метров, авторский дизайн, стойка ресепшн с консьержем, мягкие зоны ожидания, цифровые почтовые ящики и постаматы.

Архитектурная подсветка фасадов, закрытая территория, круглосуточное видеонаблюдение, пункты охраны, подземный паркинг с зарядками для электромобилей и келлерами для хранения сезонных вещей.

Квартиры предлагаются как без отделки (свобода для вашего дизайна), так и с чистовой отделкой по авторскому дизайн-проекту.

ОНЛАЙН КОНСУЛЬТАЦИЯ

Ответим на ваши вопросы и отправим всю
необходимую информацию о проекте, сроках, квартирах

НЕ НАШЛИ ПОДХОДЯЩЕЕ?

Укажите параметры недвижимости, и мы подберем варианты в течение дня бесплатно

Пожалуйста, укажите телефон
Согласен с политикой обработки персональных данных
Необходимо согласие
Написать в мессенджер